
Interior design has traditionally been an expensive and time-consuming process. Hiring a professional interior designer, visiting showrooms, and trying to visualize how furniture will look in your space — it all adds up. But in 2026, AI-powered interior design tools are making professional-quality home design accessible to everyone.
In this guide, we'll walk you through exactly how to design your home with AI — from uploading a floor plan to generating photorealistic renders of every room. No design experience required.
An AI home designer is a tool that uses artificial intelligence to help you plan, visualize, and furnish your living spaces. Instead of guessing how a sofa will look in your living room, you upload your floor plan and see a fully rendered 3D model of your apartment — complete with real furniture you can actually buy.
Tools like MeltFlex take this a step further. You upload a 2D floor plan, and the AI automatically converts it into an interactive 3D model. From there, you can place real furniture from curated brands, change wall colors and flooring materials, and generate photorealistic renders of each room. The entire process takes minutes, not weeks.
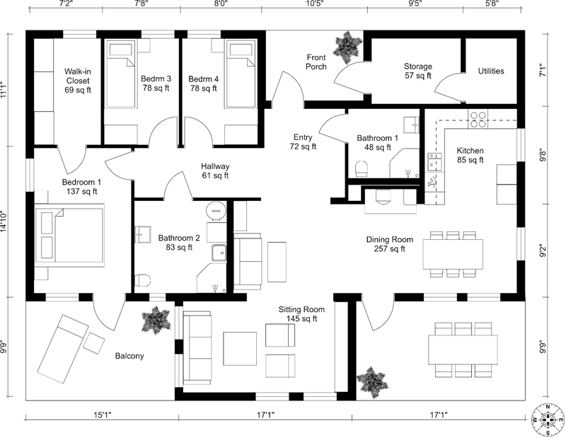
Every great AI home design starts with a floor plan. Whether you have an architect's drawing, a hand sketch on paper, or even a photo from a real estate listing — AI can work with it. Simply upload your floor plan image and the AI will automatically identify rooms, walls, doors, and windows.
The floor plan below shows a multi-room apartment with bedrooms, a kitchen, dining room, bathrooms, and a living area. This is the kind of image you'd upload to get started.

This is where the AI interior design magic happens. The AI analyzes your 2D floor plan and generates a complete interactive 3D model in seconds. Walls are placed at the correct height, doors and windows are positioned accurately, and each room is properly defined with the right proportions.
What used to take a 3D artist hours of manual work now happens automatically. You can rotate the model, zoom in, and walk through your apartment from any angle. On the right side, you see a curated catalog of real furniture you can drag directly into your rooms.

Modern minimalist? Cozy Scandinavian? Bold retro? With an AI room designer, you can generate photorealistic renders of your rooms in different interior design styles. Select a style from the dropdown — Scandinavian, Retro, Minimalist, or Custom — add a text description of the mood you want, and the AI generates a fully styled visualization.
This is incredibly powerful for decision-making. Instead of committing to a single style based on Pinterest photos, you can see exactly how different aesthetics look in your actual apartment layout. No expensive mistakes, no regrets.

Unlike generic 3D modeling tools, AI interior design platforms connect directly to furniture catalogs from real brands. You can browse real products, see detailed specifications, material descriptions, exact dimensions, and pricing — then place them directly in your 3D room.
Every piece of furniture is rendered at real-world scale. So when you place a chair in your dining room, you see its exact proportions relative to the table, the walls, and the rest of the space. What you see in the 3D model is exactly what you can order and have delivered to your home.

Once you're happy with your furniture placement and style choices, the AI generates photorealistic images of each room. These renders look like professional interior photography — complete with natural lighting through windows, realistic shadows, and true-to-life material textures. Perfect for sharing with family, roommates, or your contractor.

The best part? Every item in the render is shoppable. You can see the total cost of your design and add individual pieces directly to your cart — bridging the gap between interior design visualization and furniture purchase. No more searching for "that chair from the inspiration photo."

Speed: What takes weeks with a traditional interior designer takes minutes with AI. Upload your floor plan and have a complete 3D visualization in under a minute.
Cost: Professional interior design services can cost thousands of euros. AI home design tools offer free tiers that give you professional-quality results without the price tag.
Experimentation: Try dozens of furniture combinations, color schemes, and room layouts without moving a single piece of furniture. AI makes it easy to explore every possibility.
Accuracy: See exactly how furniture fits in your space before buying. No more guessing if that sofa is too big for your living room — the 3D model shows you real-world proportions.
Shoppable designs: Every piece of furniture in your AI design is a real product you can buy. See prices, compare options, and order directly — all from within the design tool.
Yes. MeltFlex offers a free tier that lets you upload a floor plan, convert it to 3D, place furniture from real brands, and generate photorealistic renders — all at no cost.
All you need is a floor plan. It can be an architect's drawing, a hand sketch, or even a screenshot from a real estate listing. The AI automatically detects rooms, walls, doors, and windows.
The AI converts your floor plan into a dimensionally accurate 3D model. Walls, doors, and windows are placed precisely where they appear in your original plan. Furniture is shown at real-world scale, so you can verify proportions before making any purchases.
Yes. Every piece of furniture in MeltFlex is a real product from curated brands, with full pricing, dimensions, and material specifications. You can add items directly to your shopping cart from the design view.
Ready to design your home with AI? All you need is a floor plan. Upload it to MeltFlex and watch as AI transforms your 2D drawing into an interactive 3D home. Browse real furniture, experiment with interior design styles, and generate stunning photorealistic renders — for free.
To see AI design in action with real before and after results, our one room, 4 AI designs guide shows complete transformations with cost breakdowns. For a full comparison of the major interior design styles, see the complete interior design styles guide. And if you want to explore the best AI tools available, our tested comparison of free AI interior design tools covers what each one actually delivers.